浅原橋東側、県道沿いの物件です。
可視性が高いことに加え、元銀行の建物は存在感があります。
セキュリティ面でも災害面でも安心です。
新規オフィスやオフィスの移転にいかがでしょうか。
ぜひ一度ご検討ください!
| 築年月 | 1987/02 | 新築/中古 | 中古 |
|---|---|---|---|
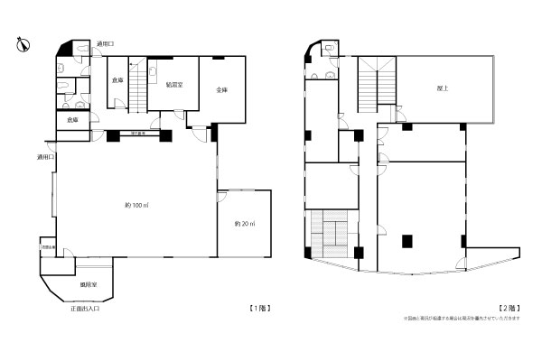
| 面積 | 402.63m² | 計測方式 | |
| バルコニー | 向き | ||
| 建物階数 | 地上2階 | 部屋階数 | |
| 建物構造 | RC | ||
| 間取内容 | |||
| 駐車場 | 空有 建物前5台、建物裏7台、駐車可能です。 | 取引態様 | 一般 |
| 引渡/入居時期 | 即時 | 現況 | 空家 |
| 土地面積 | 804.23m² | 土地面積計測方式 | |
| 周辺環境 | |||
| 設備・条件 | 事務所可 トイレ専用 エアコン 公営水道 排水下水 駐車場有 | ||
| 物件番号 | 61710144 | 掲載期限日 | 2026/01/31 |
| 特記事項 | ※飲食店不可 | ||
浅原橋東側、県道沿いの物件です。
可視性が高いことに加え、元銀行の建物は存在感があります。
セキュリティ面でも災害面でも安心です。
新規オフィスやオフィスの移転にいかがでしょうか。
ぜひ一度ご検討ください!